
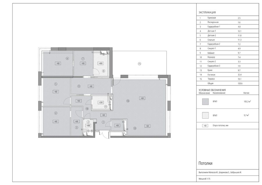
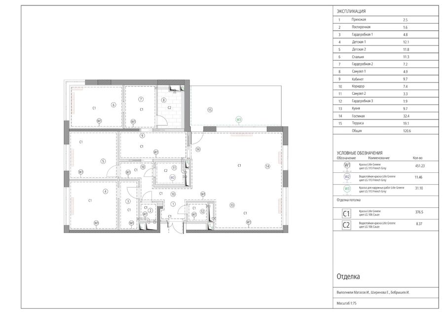
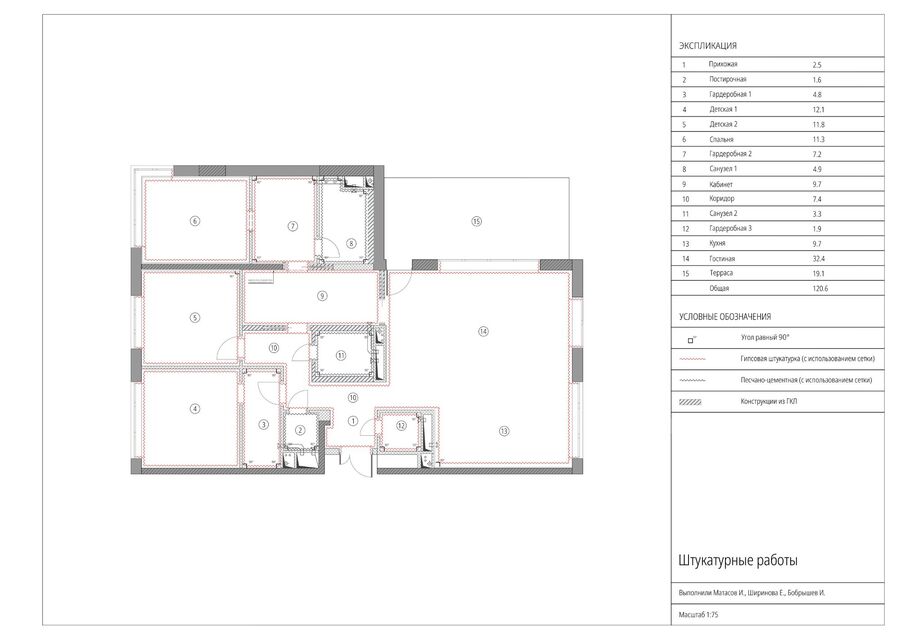
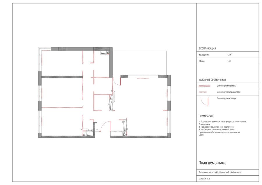
Просторная квартира с террасой для семьи. Пространство квартиры делится на две основные зоны: приватную часть со спальнями для членов семьи, и социальную — единое пространство кухни-гостиной с выходом на террасу. Соединяет две зоны кабинет. Для акцента в интерьере использовали винтаж, нестандартную, с интересными деталями и функциональную мебель.


