
Rust & Coal — это современное гастрономическое пространство, вдохновлённое эстетикой индустриального прошлого и первобытной силой огня. Пространство построено на диалоге металла и угля, света и тени: массивные бетонные блоки, графитовые плоскости и медно-рыжие акценты создают ощущение монолитной убежденности, в то время как живое пламя, мягкая подсветка и органика растений добавляют интимности и тепла. Пространство создано для тех, кто ценит честные вкусы, глубокие оттенки и атмосферу внутреннего жара.

Техническое задание
1. Общие сведения Объект: Ресто-бар Rust & Coal Адрес: Санкт-Петербург, исторический центр.
2. Исходные данные Тип здания: старое кирпичное здание. Общая площадь помещения: 146,5 кв. м. Высота потолков: 3,0 м.
3. Цель проекта Создание концептуального интерьера ресто-бара Rust & Coal — современного гастрономического пространства с атмосферой индустриальной эстетики и чувством тепла от огня и металла. Интерьер должен сочетать брутальность материалов и уют, подчеркивать уникальную атмосферу заведения и соответствовать бренд-концепции.

Materialbord

Планировка
Welcome-зона, гардероб
Зал 1, зона у камина, посадка до 5 человек
Вид на барную стойку
VIP комната


Общий вид на барную стойку, зал 1 и входную группу из глубины помещения
Вид на окна


Зал 2, «французская посадка»


Общий вид на барную стойку и зал 2


Санузел
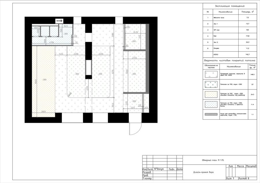
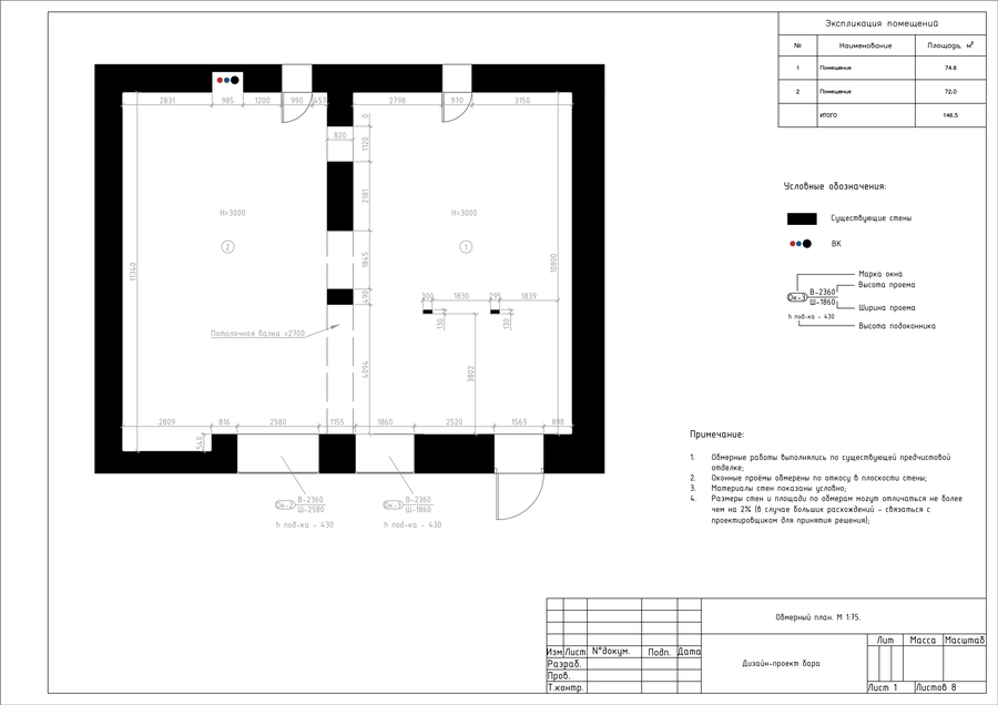
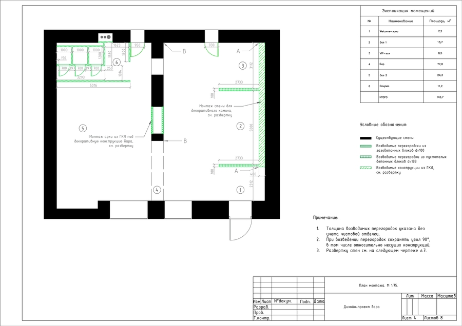
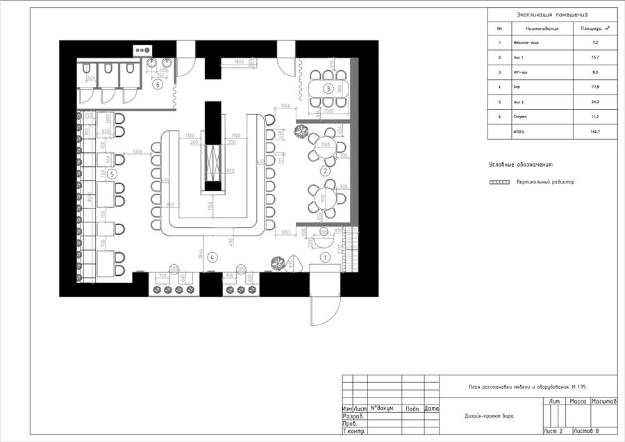
Рабочая документация
Благодарю за внимание!