Отель «Crystal Fjord» расположен на побережье села Териберки и ориентирован на тематику льда, снега и холода.
Фишкой отеля стал большой спа-центр на цокольном этаже, а также застекленный канал в полу с водой из Лодейного залива.
Ситуационный план
Фасад представляет собой имитацию ледяной глыбы с расколами в оконных проемах.
Фасад гостиницы
Западный фасад
Модель фасада
Модель фасада
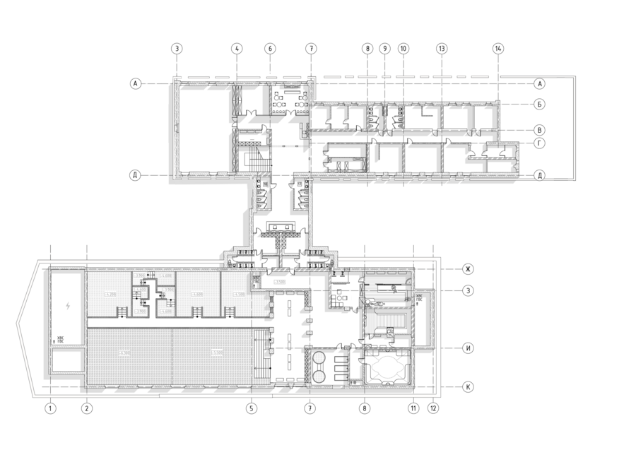
На цокольном этаже расположены термы, банный комплекс, а также фитнес клуб. Окна цокольного этажа выходят под самую водную гладь залива, что создает переменчивое естественное освещение и атмосферу полного погружения
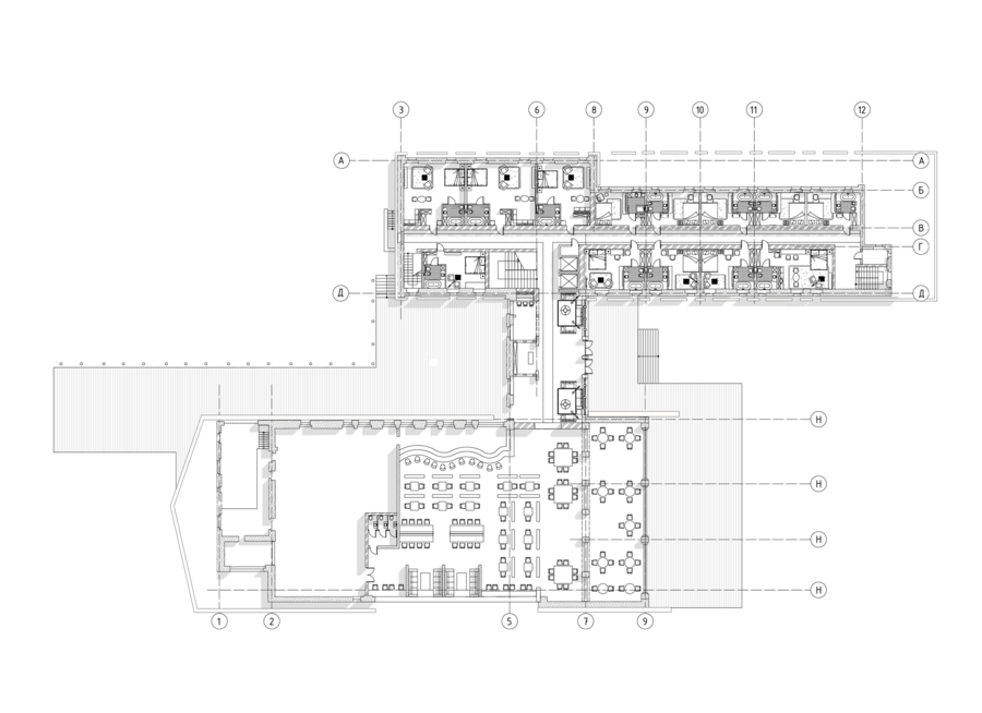
На остальных этажах расположились номера различных классов, а также ресторан с застекленной террасой.
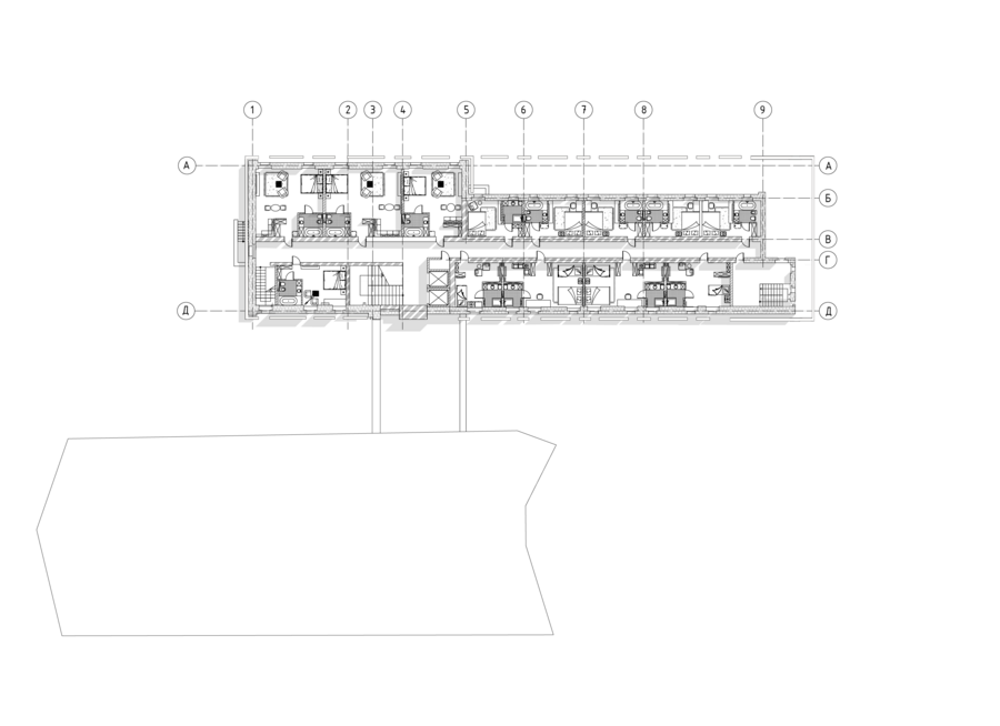
Планировочное решение
Термы
Термы
Холл
Холл
Холл
Холл
Номер «Люкс»
Номер «Люкс»
Санузел номера «Люкс»
Санузел номера «Люкс»




