

ОБЩАЯ ИНФОРМАЦИЯ
Жилые дома № 2, 4, 6, 8 на Новосмоленской набережной, известные как «Дома на ножках», представляет собой серию монолитных жилых зданий, построенных в период с 1987 по 1993 годы по проекту архитекторов В. А. Сохина, В. Н. Соколова и П. В. Курочкина. В 1966 году был утвержден экспериментальный проект детальной планировки и застройки нового Приморского района Ленинграда, где необходимо было создать выдающийся архитектурный ансамбль. [1, 7]
На фото схема развития центра Ленинграда на Васильевском острове {3}
Анализ через методологию Питера Айзенмана
[ТЕКТОНИКА + ПАМЯТЬ МЕСТА]
Опоры зданий — это конструктивный ответ на реальную угрозу наводнений на намывных территориях: «за счёт этого помещения избавляются от сырости и получают достаточно света и воздуха», о чем говорится в статье «Практическая реализация идей Ле Корбюзье в Ленинграде на примере здания на Новосмоленской набережной». [2]

Но архитекторы превратили эту практическую необходимость в архитектурный жест, отсылающий к модернистской идее Ле Корбюзье о доме, поднятом над землей. В этом конфликте записана тектоническая память места: материальные опоры хранят в себе историю взаимодействия человека и воды. [2] {1}

Как известно, Ле Корбюзье «первые свои строения поднимал над землей для того, чтобы не нарушать единое пространство территории вокруг них, чтобы дома не доминировали над окружающей средой». [2]
Однако тектоника этого здания парадоксальна. У Ле Корбюзье в Марсельской единице колонны тонкие и ритмичные, они визуально облегчают массу здания и выглядят гармонично, создавая впечатление парения. В ленинградском варианте опоры массивны и тяжеловесны, они производят впечатление борьбы, устойчивости, почти защиты. Одна и та же идея получила противоположный смысл: у Корбюзье это манифест свободы, в «Доме на ножках» это маркер уязвимости места.
На фото «Марсельская единица» Ле Корбюзье {5}


Ле Корбюзье «Марсельская единица» вид сбоку {5}/ Ле Корбюзье «Марсельская единица» вид снизу {5}
Интересно, что в других советских зданиях идея поднятия на опоры теряла связь с памятью и становилась чистой имитацией. Например, дом на ВДНХ или дом авиаторов на Беговой улице используют ножки только как декоративный элемент, их опоры ни от чего не защищают. «Дома на ножках» отличаются именно тем, что их тектоника остаётся честной: форма родилась из конкретного места, его истории, его опасности. Память встроена в саму конструкцию.


«Дом — сороконожка» возле ВДНХ, Москва (1963–1968) {8}// Дом авиаторов на Беговой улице, Москва (1973–1978) {11}

[КОНФЛИКТЫ И НЕРАЗРЕШИМОСТИ]
1: Опоры как конструкция и знак
Разберем подробнее опоры зданий на Новосмоленской набережной. Айзенман в своем анализе Виллы «Иль Джирасоле» Луиджи Моретти показывает, как массивный рустованный цоколь одновременно кажется и мощным фундаментом, и декоративной бутафорией, лишая здание однозначного прочтения его материальности. Этот прием выявляет внутренний конфликт между конструктивной логикой и семиотическим значением элемента. [9]
На фото «Иль Джирасоле» Луиджи Моретти {4}

В случае «Домов на ножках» архитекторы создали сложные многоугольные по конструкции опоры с выраженной тектоникой. Их наклонное положение и сложная геометрия создают интересный оптический эффект: с разных точек обзора опоры кажутся то более массивными, то почти невесомыми. {1}
Эта игра с восприятием напоминает айзенмановский анализ дома Фарнсуорт, где Людвиг Мис ван дер Роэ добивается подобного эффекта с помощью вынесенных колонн и парящих плоскостей. [9] {9}

С одной стороны, опоры позволяют «максимально уберечь жилые помещения от наводнений». Однако их громадность и грубая бетонная фактура создают ощущение неустойчивости. Взгляд фиксируется на зазорах между этими мощными «ногами», из-за чего вся конструкция кажется шаткой, будто вот-вот рухнет.
«Однако инженеры, принимавшие участие в строительстве этих домов, учли множество факторов, таких как ветровые нагрузки, колебания почв, влияние осадков и многое другое. Массивный центральный столб и 16 вспомогательных опор, расположенных по периметру здания, делают его очень устойчивым и способным выдерживать большие нагрузки». [2-5]
На фото примечания к плану свай от ГАПа {3}
Разрез «дома на ножках» на Новосмоленской набережной {3}
Опоры оказываются неразрешимыми: они одновременно устойчивы конструктивно и неустойчивы визуально, создавая состояние постоянного напряжения между тем, что здание есть, и тем, как оно выглядит.

2: Индивидуальность архитектора и серийность
Несмотря на кажущуюся прагматичность здания, в книге Анны Броновицкой и Николая Малинина «Ленинград: архитектура советского модернизма 1955–1991. Справочник-путеводитель» отмечалось, что «это самый мощный из реализованных фрагментов плана застройки западной части Васильевского острова». [11]
Также монолитный каркас и складчатая структура фасадов были индивидуальным почерком Виталия Сохина, который зародился в работе над зданием Морского вокзала. Как отмечалось всё в той же книге: «Самое заметное в облике прямоугольного здания — напоминающие паруса навесные панели», «которые либо служили ограждениями балконов, либо скрывали воздухозаборы технического этажа». [11]
На фото здание Морского вокзала, Санкт-Петербург {7}
Этот прием стал визитной карточкой Сохина, так как он вдохновил архитектора на конструкцию «Дома на ножках», где треугольные эркеры позволили стать зданию более пластичным и пропускать больше света. Соавторы проекта, Соколов и Курочкин, отвечали за проектирование застройки эспланады. {1}

Здесь возникает другой конфликт, связанный с уникальностью. «Дом на ножках» представляет собой исключительное архитектурное решение, это сложная многоугольная геометрия. Тем не менее, четыре практически идентичных дома выстроены в ряд. Их уникальность тиражируется, становясь серийной. Это противоречие между уникальным замыслом и его повторением также будет «неразрешимостью». {1}
3: Фасад как объем и плоскость
Фасад этих домов не плоский. Его «складчатая» структура, напоминающая гармошку, создает динамичную игру света и тени. В солнечный день эти складки и грани отбрасывают тени, делая поверхность живой и объемной. В пасмурную погоду или на расстоянии этот рельеф сглаживается, и фасад может восприниматься как более плоский.
Характер здания меняется в зависимости от условий наблюдения, создавая нестабильность восприятия. {1}
[ДИАГРАММЫ]
Питер Айзенман предлагал читать здание как «диаграмму». Мне удалось обнаружить 2 силы, которые напрямую повлияли на внешний вид здания. Первая — это защита от воды, как уже было ранее сказано. Вторая сила заключается в создании нового очертания города. Здания построены на территории, где не было исторической застройки. [2]
Однако градостроительный контекст, в который помещены «Дома на ножках», оказывается сложнее, чем обычное пустое пространство. Они являются частью запланированного ансамбля вместе с Домом № 1 на Новосмоленской набережной (ЦФТ) [8] {13}

В анализе дворца Конгрессов Ле Корбюзье Айзенман вводит понятие «фигуральности». Обычно жилой дом является «фоном» городской среды. «Дома на ножках» же своей масштабностью и исключительностью стремятся стать самостоятельными «фигурами». Однако их гигантские опоры, создающие мощный образ издалека, превращаются в давящий, некомфортный навес для пешехода вблизи. {1}
Это создает то, что Айзенман мог бы назвать «неустойчивой идентичностью». Он не становится полноценной фигурой-доминантой из-за повторения и не выполняет роль комфортного «фона» из-за масштаба. [6, 9]
Анализ через методологию Роберта Вентури

[ЧЕРТЫ УТКИ И/ИЛИ ДЕКОРИРОВАННОГО САРАЯ]
Это здание нельзя отнести к чистым представителям «утки» или «декорированного сарая», я думаю, что это сложный гибрид.
Посмотрим на это здание как на потенциальную «утку»: главным аргументом будут опоры. Уже на стадии работы над макетом «дом был решен как два объема, смещенных один относительно другого и объединенных сердечником лифта и лестничной клетки». Но главное, каждый дом поднят на мощные, высотой в три этажа, корбюзианские опоры. Они формируют образ, который определяет восприятие всей серии этих домов. [11]
На фото «дом на ножках», вид с берега Смоленки. Проектный рисунок, 1966 {2}
Избушка на курьих ножках {10}
Функциональное решение превратилось в характерное архитектурное. Интересно, что в народной памяти здание закрепилось как «Дом на ножках», то есть его основная форма сама по себе стала символом.

Тем не менее, несмотря на то, что дом обладает сложной пластикой, благодаря эркерам, в своей основе оно остается массивным жилым блоком. Его предназначение рационально — предоставление жилья.
Обращаясь к термину «декорированный сарай» в понимании Вентури, здесь нет того, что формирует это понятие: нет крупных вывесок, орнаментов или однозначных исторических цитат, которые существовали бы отдельно от конструкции. Декор здесь, если это можно так назвать, рождается из самой структуры. [10]
На фото схема «Big sign — little building or building as sign» из книги Вентури «Уроки Лас-Вегаса: забытый символизм архитектурной формы» {12}
Исходя из этого, «Дом на ножках» занимает промежуточную позицию. Его визуал формируется из гиперболизированной конструкции, что роднит его с «уткой».
Но его примитивная сущность с отсутствием накладного декора заставляют рассматривать его как особый тип «декорированного сарая», где роль «декора» выполняет не приклеенная вывеска, а собственная выразительная конструкция. Это функциональная структура, которая сама для себя стала вывеской.

[СИМВОЛИЗМ И СООБЩЕНИЯ]
«Дом на ножках» является примером архитектуры имплицитного символизма, так как он не кричит нам ничего прямым текстом, но воздействует на уровне ощущений.
Его основной язык будет языком материала и формы. Грубый, необработанный бетон говорит о мощи, индустриальности, о суровом и прагматичном подходе к строительству. {1}
Однако те же самые формы порождают и противоположные ассоциации. Наклонные, массивные опоры, призванные демонстрировать устойчивость, визуально создают ощущение напряжения и даже шаткости издалека. {1}
Масштаб здания также является частью его сообщения людям. Огромный, поднятый над землей объем создает ощущение чего-то нечеловеческого. {13}
Это мегаструктура, что подтверждается результатами моего опроса жителей Санкт-Петербурга, отмечавших чувство беспокойства и дисбаланса при взгляде на эту архитектуру.

На мой взгляд, сравнение с Guild House, который Вентури разбирал в своей книге, здесь очень показательно. Оба здания жилые дома, но общаются они по-разному. Guild House использует эксплицитный символизм: его архитекторы намеренно взяли заурядный блок здания и добавили ему смысл через огромное окно-арку. Они «рассказали» историю через накладные знаки. [10]
«Дом на ножках» же изначально не являлся примитивным жилым домом. Это история его конструкции, которая сама по себе стала настолько выразительной, что превратилась в знак, так как возводили его «из монолитного железобетона, что было несвойственно для типовой застройки позднего Советского Союза». [6]
На фото Guild House, Роберт Вентури {6}

[КОНФЛИКТ ВНЕШНЕГО И ВНУТРЕННЕГО]
Ключевой вопрос Вентури во взаимодействии внутренней структуры здания и его внешнего образа. В идеальной «утке» они едины; в «декорированном сарае» же существуют независимо. «Дом на ножках» оказывается в промежуточной зоне, где структура и визуальный образ вступают в сложные отношения.
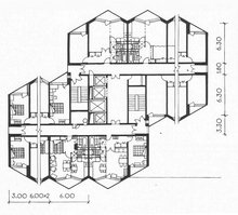
Типовой план этажа показывает, что внутренняя структура напрямую связана с внешней формой. «Складчатая» форма фасада с ритмичными эркерами — это прямое отражение нетиповой, сложной планировки квартир. {2}
Это отличает «дома на ножках», например, от Crawford Manor Пола Рудольфа, где стандартная внутренняя структура была скрыта за сложным, но чисто декоративным скульптурным фасадом. {12}
[КОНТЕКСТ И КОММУНИКАЦИЯ С ЧЕЛОВЕКОМ]
Вентури рассматривал архитектуру как диалог. Здание должно говорить с городом и, что самое главное, с человеком.
Рассматривать «Дом на ножках» отдельно от его окружения значит упускать ключевую часть его замысла. Его основу, по большей части, составляет Дом № 1 на Новосмоленской набережной (ЦФТ). И это здание, и «Дома на ножках» были спроектированы одной группой архитекторов в рамках единого плана застройки набережной в 1980-х годах.
Дом № 1 на Новосмоленской набережной (ЦФТ) {1}

Согласно архивным данным, план предполагал создание крупного архитектурного ансамбля. Дом № 1 (ЦФТ) был построен первым и его задача заключалась в формировании парадного фасада набережной. Взаимодействие зданий строится на контрасте:
Главный признак дома № 1 в длине, создающей горизонтальный эффект. «Дома на ножках» же более геометричны и поражают, скорее вертикальным эффектом, так как достигают высоты в 22 этажа. Вместе они образуют две разные градостроительные стратегии, намеренно контрастирующие друг с другом, но выглядящие цельно при этом. [8] {1}
Однако до дальнейшей стройки парадной площади с грандиозным монументом дело так и не дошло. [11]
С одной стороны, здание рассчитано на восприятие издалека. Вентури ввел понятие «иконы», «Дом на ножках», будучи видим с дальних точек, работает именно по такому принципу. В этом масштабе сообщение можно считать успешным: здание узнаваемо и запоминается. [10] {1}

С другой стороны, на уровне пешехода, который проходит прямо под этими опорами, коммуникация полностью меняется. Форма, которая создает сильный образ издалека, при ближнем взгляде порождает чувство отчуждения. {1}
ВЫВОДЫ
Метод Айзенмана оказывается полезным даже там, где изначально не было заложено той смысловой глубины, которую он ищет в канонических зданиях. «Дома на ножках» демонстрируют, что постмодернистская критика может выявлять неразрешимости и противоречия даже в архитектуре, которая не стремилась к концептуальной сложности. Это подтверждает, что метод Айзенмана эффективен для анализа широкого спектра архитектуры, но остается открытым вопрос о том, насколько он исчерпывающ для понимания социального, символического и культурного значения здания.
Методология Роберта Вентури позволяет систематизировать сложную природу «Дома на ножках». Это здание не неудачная «утка» и не простой «декорированный сарай». Оно является ярким примером «сложного и противоречивого» объекта, который Вентури призывал ценить. Оно не имеет однозначной хорошей или плохой оценки.
Жилые дома // CITYWALLS, [б. г.].— [Электронный ресурс]. — Режим доступа: https://www.citywalls.ru/house9691.html (дата обращения: 04.10.2025).
Кожедуб Владислав Игоревич, Васильев Артур Владимирович, Каленик Станислав Владимирович: «Практическая реализация идей Ле Корбюзье в Ленинграде на примере здания на Новосмоленской набережной» // Colloquium-journal, 2020, № 5, С. 61-64.
Каменский В. А. Развитие общегородского центра и проблема выхода Ленинграда к берегам Финского залива // СиАЛ, 1966, № 11. С. 13.
Баранов Н. В. Большой градостроительный эксперимент. Новые приморские ансамбли Ленинграда // СиАЛ, 1966, № 11. С. 6–7.
Лисовский В. Г. Ленинград. Районы новостроек, 1-e изд., Ленинград: Лениздат, 1983, 277 с.
Библиотека: книги по архитектуре и строительству | Totalarch // Totalrach, [б. г.].— [Электронный ресурс]. — Режим доступа: https://books.totalarch.com/magazines/architecture_ussr/1991_01_02 (дата обращения: 11.10.2025).
город Санкт-Петербург, набережная Новосмоленская, д. 1 (район Василеостровский) // ПРАВДОМ, [б. г.].— [Электронный ресурс]. — Режим доступа: https://prawdom.ru/dom.php?hm=Novosmolenskaja%20spb_1 (дата обращения: 07.10.2025)
Жилой дом на Новосмоленской набережной, 1 // TRAVELER, [б. г.]. — [Электронный ресурс]. — Режим доступа: https://4traveler.me/travel/sankt-peterburg/zhiloy-dom-na-novosmolenskoy-naberezhnoy-1 (дата обращения: 09.10.2025).
Айзенман, П. «Десять канонических зданий, 1950-2000». — STRELKA PRESS, Москва, 2017, 312 с.
Вентури, Р. «Уроки Лас-Вегаса: забытый символизм архитектурной формы». — АдМаргинем Пресс, Москва, 2023, 208 с.
Броновицкая, А., Малинин, Н. «Ленинград: архитектура советского модернизма 1955–1991. Справочник-путеводитель». — Музей современного искусства «ГАРАЖ», Москва, 2023, 344 с.
Собственные фотографии
Броновицкая, А., Малинин, Н. «Ленинград: архитектура советского модернизма 1955–1991. Справочник-путеводитель». — Музей современного искусства «ГАРАЖ», Москва, 2023, 344 с.
Кожедуб Владислав Игоревич, Васильев Артур Владимирович, Каленик Станислав Владимирович: «Практическая реализация идей Ле Корбюзье в Ленинграде на примере здания на Новосмоленской набережной» // Colloquium-journal, 2020, № 5, С. 61-64.
In Rome, A Day-long Exploration of Luigi Moretti’s Architecture [Электронный ресурс] // SofaARome.wordpress.com, [б. г.]. — Режим доступа: https://sofaarome.wordpress.com/2010/11/29/2521/ (дата обращения: 08.10.2025).
LE CORBUSIER Unité d’habitation, Marseille [Электронный ресурс] // Divisare.com, [б. г.]. — Режим доступа: https://divisare.com/projects/198381-le-corbusier-cemal-emden-unite-d-habitation-marseille (дата обращения: 12.10.2025).
Building Stories: Guild House [Электронный ресурс] // WHYY.org, 2016. — Режим доступа: https://whyy.org/articles/building-stories-guild-house/ (дата обращения: 06.10.2025).
Санкт-Петербург: ОМ проект — 95 фото [Электронный ресурс] // Megavtogal.com, 2025. — Режим доступа: https://megavtogal.com/7-foto/sankt-peterburg-om-proekt-95-foto.html (дата обращения: 09.10.2025).
Аудиогид по Алексеевскому приведет к дому «на курьих ножках» [Электронный ресурс] // MySeldon.com, 2021. — Режим доступа: https://myseldon.com/ru/news/index/260894904 (дата обращения: 10.10.2025).
Farnsworth House [Электронный ресурс] // Pinterest.com, [б. г.]. — Режим доступа: https://tr.pinterest.com/pin/787989266067495564/ (дата обращения: 07.10.2025).
Круиз на Кижи, Речные круизы Москва Кижи и Санкт — Петербург — Кижи. [Электронный ресурс] // Pinterest.com, [б. г.]. — Режим доступа: https://ru.pinterest.com/pin/791578072010130624/ (дата обращения: 13.10.2025).
Почему панельный дом «Лебедь» в советское время считался элитным [Электронный ресурс] // дзен, 2023. — Режим доступа: https://dzen.ru/a/ZQR9lbWdGWQJIyC-?utm_medium=organic&utm_source=yandexsmartcamera (дата обращения: 06.10.25).
Вентури, Р. «Уроки Лас-Вегаса: забытый символизм архитектурной формы». — АдМаргинем Пресс, Москва, 2023, 208 с.
Дома на курьих ножках [Электронный ресурс] // yandex.com. — Режим доступа: https://yandex.com/maps/org/doma_na_kuryikh_nozhkakh/61065136723/gallery/?ll=30.073551%2C59.740164&photos%5Bbusiness%5D=61065136723&photos%5Bid%5D=urn%3Ayandex%3Asprav%3Aphoto%3A15037629_2a00000195ab27e2fcee8863632233a72e44&utm_medium=organic&utm_source=yandexsmartcamera&z=8 (дата обращения: 09.10.2025).