
Аэровокзал аэропорта «Куйбышев-Курумоч». Куйбышев (ныне Самара), РСФСР. 1976 г.
Архитекторы: В. Г. Каркарьян, Г. А. Васильев, при участии К. В. Каркарьяна Пропускная способность: 1200 пасс/ч.

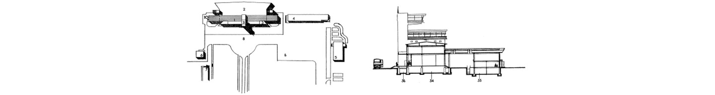
Фасад со стороны привокзальной площади осуществлённого проекта аэропорта Куйбышев – Курумоч.

слева: генеральный план / справа: продольный разрез.
Первое здание аэропорта «Куйбышев-Курумоч», построенное в начале 60х годов архитекторами В. Я. Стрельниковым и Н. И. Пархоменко, было редкого переходного стиля между сталинским ар-деко и стеклянным хрущевским модернизмом (типовой проект 1958 года). Этот аэровокзал представлял собой абсолютно симметричную композицию фасадов со стороны привокзальной площади и аэродрома. Его двухэтажное протяженное здание было увенчано со стороны перрона башней КДП в виде небольшой усеченной перевернутой пирамиды. Симметрия и контраст массивных «рам» и остекленных поверхностей придала этому зданию эффект монументальности.
Любой аэровокзал создается на стыке технологии и архитектуры, поэтому со временем в Куйбышеве встал вопрос о строительстве нового аэровокзала. Выходящий на привокзальную площадь фасад нового здания 1976 года довольно эффектен. Аэровокзал спроектирован полностью симметричным. Центральную его ось фиксирует высокая остеклённая башня с часами, через которую организован вход.
Однако, из-за превышения пропускной способности аэровокзала архитекторы были вынуждены не строить новое здание целиком, а реконструировать предыдущую постройку, включив её внутрь нового аэровокзала.

слева: планы 1-го и 2-го этажа осуществлённого проекта аэропорта /справа: вид на здание пассажирского терминала; сотрудники аэропорта, пилоты и стюардессы, позируют на автотрапе на фоне аэровокзала.
Аэровокзал аэропорта «Советский». Ханты-Мансийск, РСФСР. 1968 г.
Архитектор: неизвестен Пропускная способность: приблизительно 250 пасс/ч.
Здание аэровокзала аэропорта «Советский» в городе Ханты-Мансийске. Фото предоставлены Музеем «Природы и Человека» 2008 г.
слева: аэропорт «Советский». Ханты-Мансийск. Фото 1971–1972 гг. / справа: вестибюль аэропорта.
Аэровокзал аэропорта «Южно-Сахалинск». Южно-Сахалинск, РСФСР. 1945 г.
Архитектор: неизвестен Пропускная способность: приблизительно 200 пасс/ч.
слева: вид на фасад со стороны города. Фото 1950-х г. / справа: вид со стороны перрона. Фото 1950-х г.
Новый аэровокзал аэропорта «Южно-Сахалинск». Южно-Сахалинск, РСФСР. 1960-е г.
Архитектор: неизвестен Пропускная способность: 400 пасс/ч.
Аэропорт «Южно-Сахалинск» является главным аэропортом на Сахалине, российском острове на Дальнем Востоке. Первый аэровокзал аэропорта был построен в 1945 году. С течением времени он прошел через ряд модернизаций и расширений. В связи с активной экономической деятельностью на острове, аэропорт является ключевым транспортным хабом, обеспечивая пассажирские и грузовые перевозки. Обслуживает как международные, так и внутренние рейсы.
Новое здание аэровокзала «Южно-Сахалинск». Фото 1968 и 1965 г. г.
Аэровокзал аэропорта «Ульяновск». Ульяновск, РСФСР. 1970 г.
Проект Ленинградского филиала института «Ленаэропроект». Пропускная способность: 400 пасс/ч.
слева направо: первое здание аэровокзала аэропорта «Ульяновск». 1955–1957 гг. (50/пасс/ч) / фасад здания Ульяновского аэровокзала. 1970-е г. / Ульяновский аэропорт со стороны ВПП в 1980-е г.
Здание Ульяновского аэровокзала в 1960-е г.
Аэровокзал аэропорта «Ростов-на-Дону». Ростов-на-Дону, РСФСР. 1925 г.
Архитектор: неизвестен Пропускная способность: 360 пасс/ч.
Первое здание Ростовского аэропорта, 1930-е г.
сверху вниз: аэровокзал аэропорта Ростов-на-Дону. 1960-е г. / 1965 г. / 1980-е г. / конец ХХ века.
Аэровокзал аэропорта «Орджоникидзе». Орджоникидзе (ныне Владикавказ), Северо-Осетинская ССР, РСФСР. 1979 г.
Архитекторы: Ш. Беридзе, Г. Багиндарашвили Пропускная способность: 600 пасс/ч.
слева: открытка из набора «Орджоникидзе». 1984 г. / справа: план 1-го и 2-го этажей; генеральный план.
Аэровокзал аэропорта «Кольцово». Свердловск (ныне Екатеринбург), РСФСР. 1954 г.
Архитекторы: А. Минцир, В. Стрельников Пропускная способность: приблизительно 400 пасс/ч.
слева направо: автомобильная стоянка у аэропорта «Кольцово». Фото 1954–1958 гг. / делегация США и Ричард Никсон в аэропорту. Фото 1959 г. / вид на фасад здания аэровокзала.
Новый пассажирский терминал аэропорта «Кольцово» в Свердловске. Сдан в эксплуатацию в 1968 г.
Реконструкция аэровокзала аэропорта «Минеральные воды» после ВОВ. Минеральные воды, РСФСР. 1959 г.
Архитектор: неизвестен Пропускная способность: 700 пасс/ч.
В 1933 году был построен аэровокзал «Минводы». В 1942 году аэропорт был оккупирован немцами, что привело к строительству нового аэровокзала вместо разрушенного в годы войны. Однако в 1959 году аэровокзал был реконструирован. Были заново выстроены ВПП, перрон, места стоянок, рулежные дорожки. С июля 1961 года по январь 1965 года было построено новое здание аэровокзала «Минеральные воды», пропускной способностью 800 пасс/ч.
Аэровокзал аэропорта «Минеральные воды». Фото 1960-х г. г.
Здание нового аэровокзала аэропорта «Минеральные воды». Минеральные воды, РСФСР. 1965 г.
Архитектор: неизвестен Пропускная способность: 800 пасс/ч.
Здание нового аэровокзала аэропорта «Минеральные воды». Фото 1980-х г. г.
Аэровокзал аэропорта «Уфа». Уфа, РСФСР. 1963 г.
Архитектор: неизвестен Пропускная способность: 600 пасс/ч.
слева: аэропорт «Уфа». Фото 1975–1977 гг. / справа: вид с ВПП.
Аэровокзал аэропорта «Северный». Новосибирск, РСФСР. 1929 г.
Архитекторы: Жигалова, Углицкий Пропускная способность: приблизительно 500-600 пасс/ч.
Изначально являлся типовым проектом здания аэровокзала, но в итоге был доработан архитекторами Жигаловой и Углицких. Массивное здание с липами по обе стороны крыльца, колоннами, балюстрадой и декором окон построили на замыкании перспективы улицы. Помимо архитектуры, здание отличается и проработанными интерьерами, и то, что они сохранились, большая редкость для сталинского ампира. При этом сохранились не только колонны и балюстрада второго этажа, но и лепные пилястры, и гранитный пол.
сверху: привокзальная площадь аэропорта «Северный» / снизу: первый и второй этажи аэропорта. Фото 2010-х г.
Аэровокзал аэропорта «Толмачево». Новосибирск, РСФСР. 1957 г.
Архитектор: Р. М. Окунева, А. А. Воловик Пропускная способность: 1000 пасс/ч.
Главный фасад аэропорта «Толмачево» в Новосибирске.
Аэровокзал аэропорта «Симферополь». Симферополь, РСФСР. Год постройки: 1957 г.
Архитектор: неизвестен Пропускная способность: 600 пасс/ч.
Здание аэропорта Симферополя. 1970–1971 гг.
Аэровокзал аэропорты «Краснодар». Краснодар, РСФСР. 1959 г.
Архитектор: неизвестен Пропускная способность: 500 пасс/ч.
Фасад аэровокзала аэропорта «Краснодар» со стороны перрона.
Ил-18 на фоне аэровокзала аэропорта «Краснодар».
Аэровокзальный комплекс аэропорта «Краснодар». Краснодар, РСФСР. 1969 г.
Архитектор: неизвестен Построен рядом со старым терминалом. Пропускная способность: 800 пасс/ч.
слева: автобусы-перроны на фоне аэровокзала аэропорта «Краснодар». Фото 1970-х г. / справа: фасад аэровокзала.
Аэровокзал аэропорта «Колпашево». Колпашево, РСФСР. 1967 г.
Архитектор: неизвестен Пропускная способность: приблизительно 150-200 пасс/ч.
слева: первый аэровокзал аэропорта «Колпашево». Фото начала 1950-х г. / справа: новый аэровокзал аэропорта. Фото 1980-х г.
Аэровокзал аэропорта «Грозный». Грозный, РСФСР. 1977 г.
Архитектор: Д. Кадиев, Р. Барсегян Пропускная способность: 900 пасс/ч.
сверху: общий вид; генеральный план / снизу: аэровокзал аэропорта «Грозный». Фото 1980-х г.; вид на привокзальную площадь аэропорта.
слева: Аэровокзал аэропорта «Грозный» со стороны привокзальной площади / справа: план 1-го этажа, планы 2-го и 3-го типового этажей; разрез 1-1 и 2-2.
Аэровокзал аэропорта «Воронеж». Воронеж, РСФСР. 1965 г.
Архитектор: неизвестен Пропускная способность: 400 пасс/ч.
Аэровокзал аэропорта «Воронеж» со стороны главного входа.
Аэровокзал аэропорта «Рощино». Тюмень, РСФСР. 1965 г.
Архитектор: неизвестен Пропускная способность: 600 пасс/ч.
Аэропорт «Рощино» является одним из примеров поэтапного расширения и реконструкции аэровокзала в связи с постоянным ростом пассажирских и грузовых перевозок, а также с увеличением взлетно-посадочной полосы.
слева: вид из-под крыла самолета / справа: торец фасада аэровокзала.
Аэровокзал аэропорта «Петропавловск-Камчатский». Петропавловск-Камчатский (ныне Елизарово), РСФСР. 1963 г.
Архитектор: неизвестен Пропускная способность: приблизительно 200 пасс/ч.
слева: здание аэровокзала «Петропавловск-Камчатский» с видом на горы / справа: проект расширения и реконструкции аэропорта, генеральный план; планы 1-го и 2-го этажей.
Аэровокзал аэропорта «Магадан». Магадан, РСФСР. 1961 г.
Архитектор: неизвестен Пропускная способность: 700 пасс/ч.
слева: аэропорт «Магадан». Сзади видна вышка КДП. Фото 1970–1980 гг. / справа: вид с перрона; вид со стороны привокзальной площади; проектируемая пристройка залов прилета аэропорта «Магадан».
Аэровокзал аэропорта «Сургут». Сургут, РСФСР. 1962 г.
Архитектор: неизвестен Пропускная способность: 800 пасс/ч.
сверху: генеральный план / снизу: вид на фасад здания со стороны города; общий вид сверху. Фото 1960-х г.
Типовые проекты аэровокзалов
В период СССР разрабатывалось много типовых проектов аэровокзалов с учетом стандартов и технических требований.
Основные элементы типового проектирования аэропорта могут включать: - Взлетно-посадочные полосы (ВПП): Определение их длины, ширины и других параметров, учитывая категорию воздушных судов, которые будут обслуживаться. - Терминалы: Проектирование зданий терминалов, включая зоны для регистрации, пассажирских залов, таможни, иных служб и удобства для пассажиров. - Рулежные дорожки - Посадочные стоянки - Авиационные вспомогательные службы - Оборудование для навигации и световых систем.
Типовые проекты могут различаться в зависимости от размера и категории аэропорта (региональные, международные и т. д.), а также в зависимости от пропускной способности аэропорта (50, 100, 200, 400, 600, 1000 пасс/ч).
Ниже представлены наиболее выразительные примеры аэровокзалов типовой застройки на территории РСФСР (в основном строились проектной организацией «Аэропроект»).
слева: план 2 этажа типового решения аэровокзала на 1000 пасс/ч; план 2 этажа типового решения аэровокзала на 200 пасс/ч / типовой проект 506-92. «Аэропроект». Аэровокзал на 400 пассажиров для ВВЛ.
слева: аэровокзал аэропорта «Владивосток», 1961 г., архитектор неизвестен, 200 пасс/ч / справа: аэровокзал аэропорта «Архангельск», 1963 г., архитектор неизвестен, 200 пасс/ч.
слева: аэровокзал аэропорта «Архангельск», 1963 г., архитектор неизвестен, 200 пасс/ч / справа: аэровокзал аэропорта «Сыктывкар», 1960-е г., архитектор неизвестен, 200 пасс/ч.
слева: аэровокзал аэропорта «Казань», 1954 г., архитектор неизвестен, 400 пасс/ч / справа: аэровокзал аэропорта «Хабаровск», 1954 г., архитектор неизвестен, 400 пасс/ч.
слева: аэровокзал аэропорта «Челябинск», 1953 г., архитектор неизвестен, 400 пасс/ч / справа: аэровокзал аэропорта «Красноярск», 1954 г., архитектор неизвестен, 400 пасс/ч.
слева: аэровокзал аэропорта «Казань-2», 1953 г., архитектор неизвестен, 400 пасс/ч / справа: аэровокзал аэропорта «Омск», 1958 г., архитектор неизвестен, 400 пасс/ч.
слева: аэровокзал аэропорта «Омск», 1958 г., архитектор неизвестен, 400 пасс/ч / справа: аэровокзал аэропорта «Адлер», Сочи, 1956 г., архитектор неизвестен, 400 пасс/ч.
слева: аэровокзал аэропорта «Емельяново», Красноярск, середина 1950-х г., архитектор неизвестен, 400 пасс/ч / справа: аэровокзал аэропорта «Чита», 1952 г., архитектор неизвестен, 400 пасс/ч.